*PENDING SALE*
*LOT MODEL MADNESS*
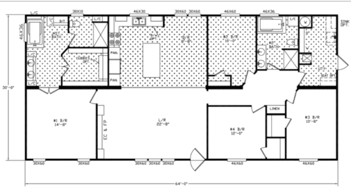
"The Tucson"
4 Bed 2 Bath
32x68
$154,995
*Concrete Pad & All Furniture/Decor Included Lot Model Only*
*Must be located in Missouri and within our delivery radius of 75 miles , If outside that subject to extra charge*
Available to order for only $148,995 No Furniture or Decor Included in Order out Units
8' Flat Ceiling
2x6 Sidewalls
OSB Weather Wrap
Hybrid Drywall Main Living Areas
LED Can Lighting
Fiberglass Tubs/Showers
Stainless Steel Appliances
Farm House Sink
Mud/Mop Sink Utility Room
Door of End of home In Utility Room
Sliding Glass Door
Electric Fireplace
Metal Roof






























