*New Layout Now Available*
"The Lean On Me"
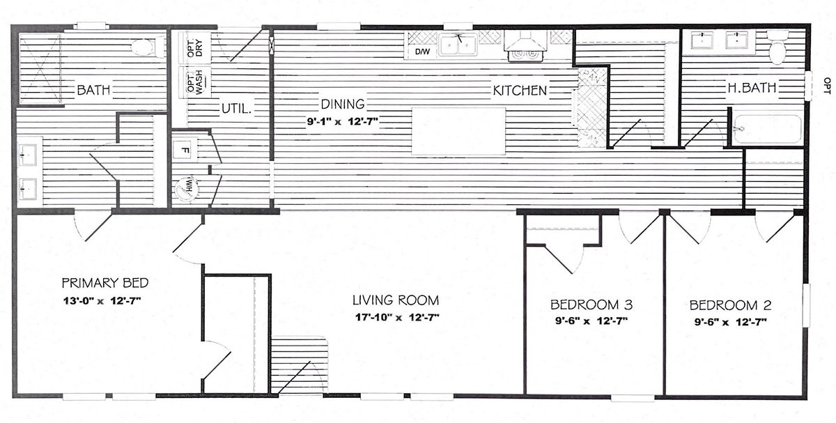
28x60 3 Bed 2 Bath
"FULL FINISHED DRYWALL"
$128,995.00
Includes/del/set/air.cond
1568 SQ Ft
E Built Features

Home includes
Stainless Appliances
2x6 Sidewalls W/R-19 Insulation
Zone 3 Insulation Package
Total Electric
Fiberglass Tubs/Showers
Porcelain Sinks
OSB Wrap under vinyl
Architectural Shingles
Deluxe Exterior Package
Can Lights T/O
40 Gallon water heater
60 inch fiberglass shower
Barn Door Utility Door
Craftsman Front Door
16 ' Dormer
Ecobee Thermostat
Matte Black Cabinet Pulls
Pfister Faucets
Much Much More Must See......
New Layout Coming Soon Below























